Active, Under Construction - Single Family Home
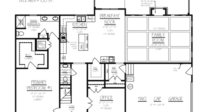
The Coastal Norma Jean Model offers 3,243 sq. ft of well-crafted living space with an open, comfortable layout designed for everyday living and easy entertaining. The main level features a spacious family room with a two‑way gas fireplace shared with the breakfast nook, a large kitchen with a center island, a private office, and a first-floor primary suite with a generous walk‑in closet and upgraded bath. A mudroom, half bath, and multiple covered outdoor spaces—including a wide front porch and composite rear porch—add convenience and charm.
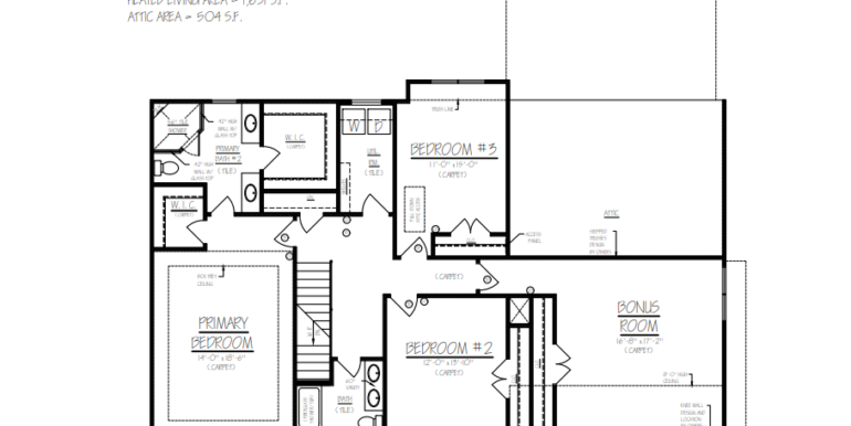
Upstairs, the home includes a second primary suite option with its own bath, two additional bedrooms, a full hall bath, a dedicated laundry room, and a large bonus room that provides flexible additional living space. With its smooth flow, abundant storage, and inviting indoor‑outdoor connection, the Coastal Norma Jean Model blends comfort, function, and coastal appeal.



